Vordere Neustadt!
Gemütliches, saniertes Bremer Reihenhaus mit Potenzial!
Schneckenhaus - Die Wohnagentur
Inh. Thorsten Lange
Göttinger Straße 8
28215 Bremen
Tel: 0421 / 353 454
Mail: schneckenhaus@wohnagentur.info
Beschreibung:
Dieses attraktive Bremer Reihenhaus liegt in der beliebten vorderen Neustadt in der Nähe des Rot-Kreuz-Krankenhauses.
Das Haus wurde bereits 1890 erbaut und im Jahr 2006 saniert und gedämmt. Derzeit steht eine Wohnfläche von ca. 86 m² zur Verfügung. Das Dachgeschoss bietet weitere Raumreserven.
Das Grundstück ist ca. 98 m² groß.
Die Innenstadt ist schnell zu erreichen. Die Kleine Weser und der Werdersee bieten optimale Naherholung.
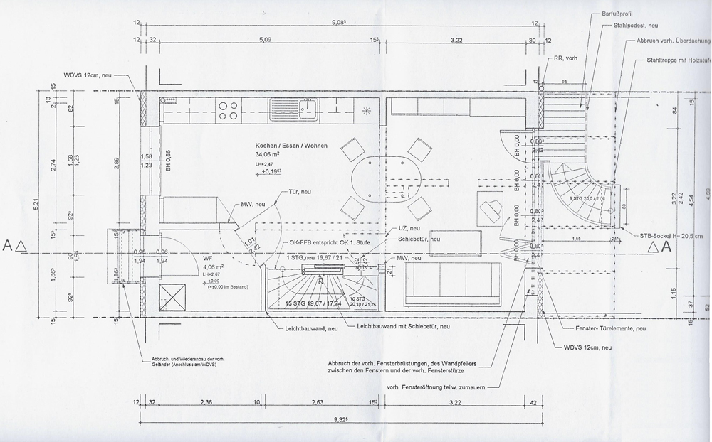
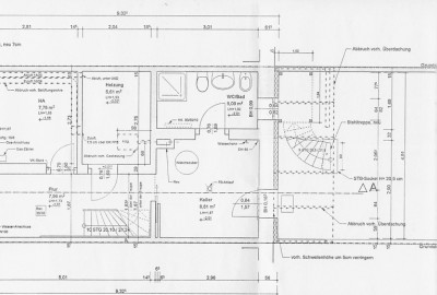
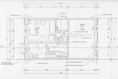
Im Hochparterre
befinden sich der separate Eingangsbereich (Windfang) sowie der großzügige Wohn- und Essbereich (ca. 34 m²) mit offener Küche. Von hier aus gelangt man über eine Metalltreppe in den schönen Garten. Großzügige Fensterelemente sorgen für optimale Lichtverhältnisse.
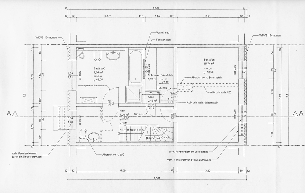
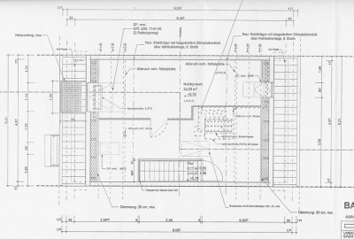
Im Obergeschoss
sind ein Schlafzimmer, ein Abstellraum sowie ein großzügiges Tageslichtbad untergebracht. Flur und Schlafzimmer sind mit Tretford-Teppichboden ausgelegt.
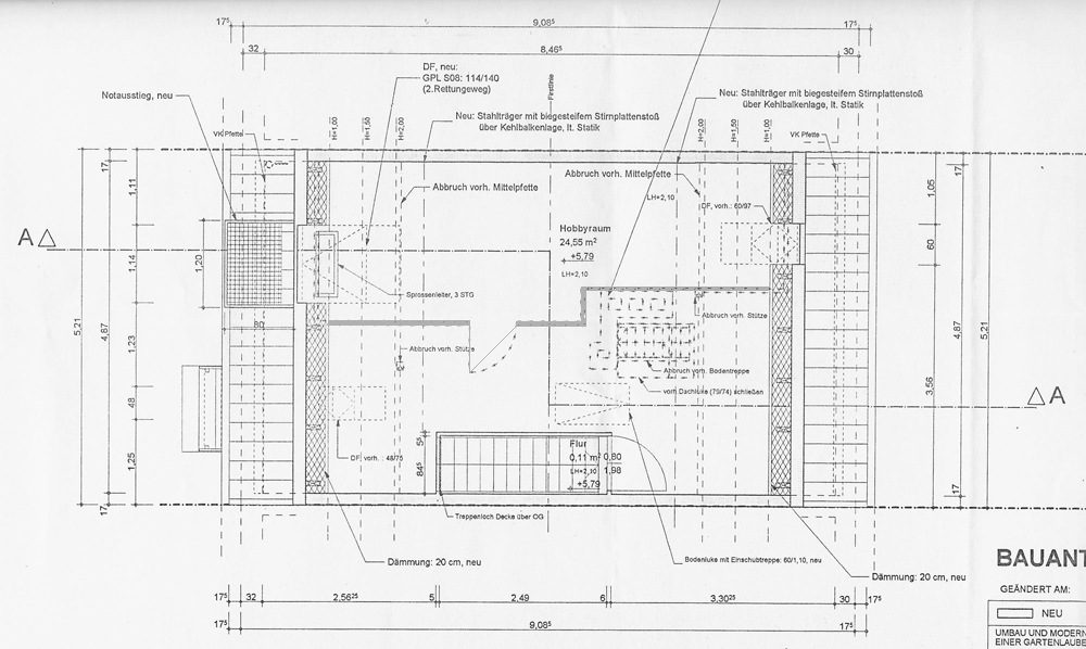
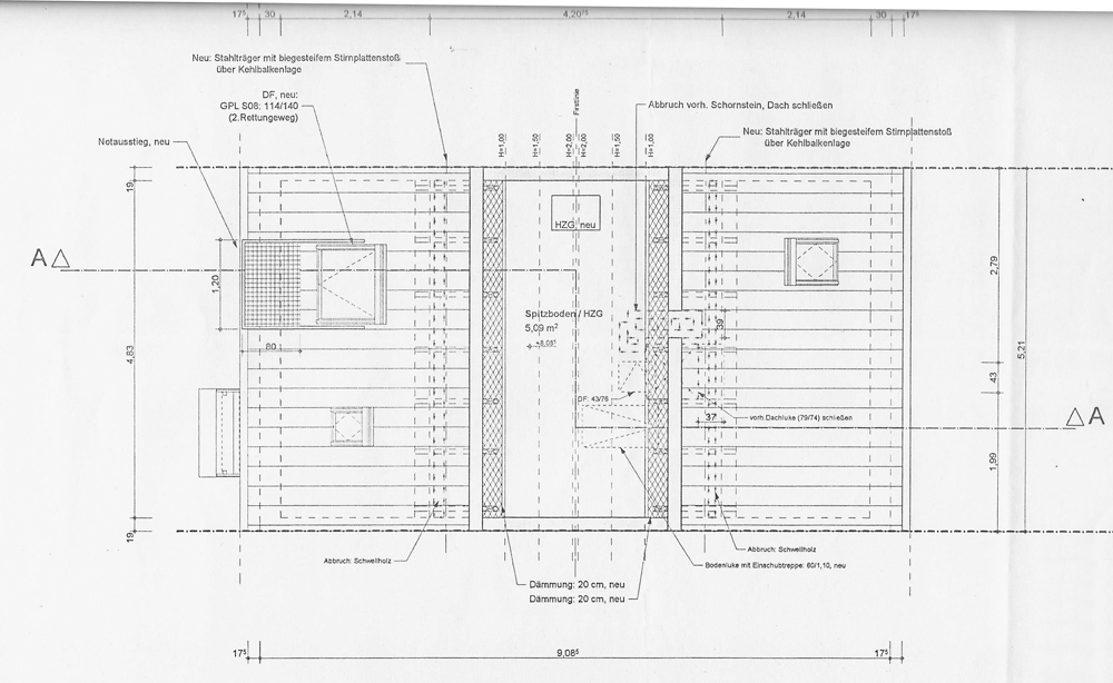
Im Dachgeschoss
ist ein Gästezimmer eingerichtet. Es ist genügend Platz für den Ausbau eines weiteren Zimmers vorhanden. Auch der Spitzboden könnte als zusätzliche Raumreserve genutzt werden.
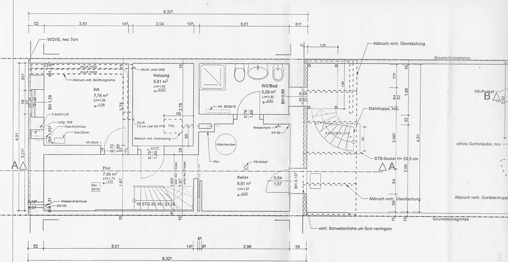
Im Keller
befinden sich 3 Abstellräume und der Heizungsraum. Ein älteres Duschbad ist ebenfalls vorhanden. Der Zugang zum Garten ist ebenfalls vom Keller aus möglich.
Ausstattung:
Im Jahr 2006 wurden folgende Renovierungs- und Modernisierungsarbeiten durchgeführt:
- Außenwände wurden gedämmt
- Dämmung der Zwischendecke im DG
- neue Heizungsanlage (Gasbrennwert)
- neue Raumaufteilung
- Einbau neuer Holzfenster und -türen
- Grundrissänderung
- neue Wasserleitungen
- neue Heizkörper komplett
- neue Elektroinstallation
- Parkett im Wohnzimmer
- neue Hauseingangstür
- neues V-Bad mit Fussbodenerwärmung im OG
Die vorhandene Einbauküche kann im Haus verbleiben.
Glasfaser ist bereits vorhanden.
Angaben zum Energieausweis:
Art: Verbrauchsausweis
Gültig bis: 06.10.2034
Endenergieverbrauch: 122,01 kWh/(m²*a)
Baujahr lt. Energieausweis: 1890
Wesentlicher Energieträger: Erdgas
Energieeffizienzklasse: D
Lage:
Die Neustadt / Südervorstadt bietet optimale Möglichkeiten zum Wohnen und Wohlfühlen. Mit den Straßenbahnlinien 4 und 6 (Theater am Leibnizplatz) haben Sie eine perfekte Anbindung an die Bremer Innenstadt und den Flughafen.
Das südöstliche Niedersachsen liegt quasi vor der Haustür.
Zahlreiche Grünflächen und Parks sowie der Werdersee laden zur Naherholung, zum Baden oder Joggen ein. Das vielfältige Einkaufsangebot lässt keine Wünsche offen.
WICHTIG!
Bitte vergessen Sie bei E-Mail-Anfragen nicht eine Telefonnummer anzugeben, unter der Sie tagsüber erreichbar sind.
Sämtliche Objekt bezogenen Informationen werden aufgrund der Angaben des Auftraggebers oder seines Vertreters weitergegeben. Wir haben diese Informationen nicht überprüft und können deshalb für die Richtigkeit keine Haftung übernehmen.



